-
목차
반응형
인천 송도국제도시의 부동산 시장은 2025년 현재 여전히 높은 관심을 받고 있습니다.
그중에서도 송도 한내들 센트럴리버는 11공구에 들어서는 마지막 주거 단지 중 하나로,
교통·교육·생활 인프라를 모두 갖춘 완성형 신축 브랜드 아파트입니다.이 단지는 2029년 3월 입주를 목표로 현재 청약 일정을 진행 중이며,
유승건설이 시공을 맡아 총 501세대 규모로 공급됩니다.
지하 1층 ~ 지상 29층, 6개 동 규모로 이루어진 중대형 단지로,
송도의 남쪽 생활권을 완성하는 중요한 프로젝트로 평가받고 있습니다.
📍 송도 한내들 센트럴리버 위치 및 단지 개요
- 위치: 인천광역시 연수구 송도동 543번지 (송도국제도시 11공구 내)
- 규모: 지하 1층 ~ 지상 29층, 총 6개동
- 세대수: 501세대 (전용 84㎡ 단일 평형)
- 주차: 세대당 1.57대, 총 787대
- 입주예정: 2029년 3월
송도 한내들 센트럴리버는 11공구의 마지막 주거지로,
삼성바이오로직스, 세브란스 병원, 현대프리미엄아울렛, 연세대 국제캠퍼스 등
핵심 산업 및 생활시설과 인접해 있습니다.
특히 송도 내에서도 향후 생활·교육·상업 인프라가 모두 집약되는 지역으로
입지 경쟁력이 매우 높습니다.
🏢 공급 물량 및 구성
송도 한내들 센트럴리버는 총 501세대 전 세대를 일반분양으로 공급합니다.
- 일반공급: 186세대
- 특별공급: 315세대
(기관추천 49세대, 경제자유구역 49세대, 다자녀가구 49세대, 신혼부부 113세대, 노부모부양자 13세대, 생애최초 42세대)
즉, 실수요 중심의 분양 구조로 신혼부부·생애최초 등
청년층과 가족 단위 실수요자에게 유리한 청약 조건을 제공합니다.
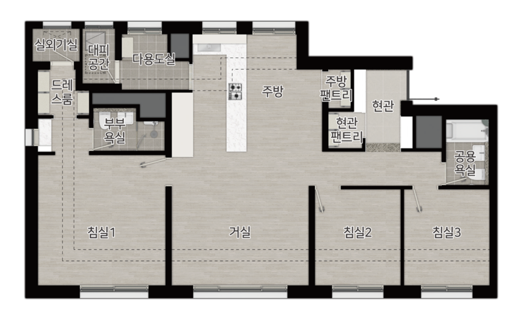
🏠 평면도 및 타입 구성
모든 세대가 전용 84㎡ 단일 평형으로 구성되며, 내부 타입은 5가지입니다.
- 84A/B/C/E 타입: 4베이 구조로 채광과 통풍이 우수
- 84D 타입: 맞통풍이 어려운 구조이지만 타워형 설계로 개방감 확보
특히 A타입과 B타입은 거실과 주방의 개방형 구조로 가족 중심의 공간 활용이 용이하며,
E타입은 코너세대 배치로 조망권이 탁월한 점이 장점입니다.최근 트렌드에 맞게 발코니 확장은 기본 무상 제공되며, 비확장형 선택은 불가합니다.
<84A>

<84B>

<84C>

<84D>

🧾 1순위 청약 자격 및 조건
청약 신청일 기준, 인천광역시·서울특별시·경기도에 거주하는 만 19세 이상 무주택자 또는 세대주가 대상입니다.
- 1순위 조건: 청약통장 가입 12개월 이상 및 예치금 충족
- 지역 우선공급: 50%는 인천 거주자, 50%는 수도권(서울·경기) 거주자
- 청약예치금:
- 재당첨제한: 없음
- 거주 의무: 없음
- 전매제한: 6개월
즉, 청약 경쟁률이 높을 가능성이 크지만
비규제지역이라는 장점을 갖고 있어 단기 유동성 확보가 가능한 실속 청약 단지로 평가됩니다.
🗺 입지 환경 분석
송도 한내들 센트럴리버가 위치한 11공구는
삼성바이오로직스, 현대프리미엄아울렛, 연세대 국제캠퍼스, 세브란스 병원, 워터프런트 복합상업시설 등
대규모 개발 프로젝트가 몰려 있는 지역입니다.특히 단지 바로 옆에 유치원·초등학교·중학교 부지가 계획되어 있어
‘도보 통학이 가능한 완성형 학세권 입지’로 꼽힙니다.현재 상권은 다소 초기 단계이지만, 향후 워터프런트 상업지구 조성이 완료되면
생활 인프라는 획기적으로 개선될 예정입니다.
즉, 시간이 지날수록 주거 가치 상승이 예상되는 장기 보유형 단지입니다.
💰 분양가 및 계약 조건
송도 한내들 센트럴리버의 분양가는 타입별로 다음과 같습니다.
타입 분양가(최저~최고) 84A 8억 3,340만 ~ 8억 9,860만 원 84B 8억 3,510만 ~ 8억 8,290만 원 84C 8억 2,890만 ~ 8억 9,000만 원 84D 8억 1,340만 ~ 8억 7,580만 원 84PA (테라스) 12억 5,000만 원 84PB (테라스) 12억 원 계약조건:
- 계약금 5%, 중도금 60%, 잔금 35%
- 중도금 대출은 후불이자 방식
- 발코니 확장 무상 제공, 비확장형 선택 불가
👉 송도 내 인근 단지 대비 중간~상위 수준의 분양가로 평가되며,
브랜드·입지·향후 인프라 확충을 감안하면 적정 수준의 시세 형성으로 볼 수 있습니다.
📊 시세 차익 및 비교 분석
인근 단지인 송도자이 풍경채 그라노블 1~5단지의 거래가는 7억 후반~8억 후반 수준으로 형성되어 있습니다.
송도 한내들 센트럴리버의 분양가가 이와 유사하게 책정되어
초기 프리미엄 형성보다는 안정적 입주 가치 중심의 단지로 볼 수 있습니다.다만, 그라노블 단지가 2,700세대 규모 대단지인 반면 한내들 센트럴리버는 501세대 규모의 중소형 단지로,
커뮤니티 시설 및 대단지 인프라 측면에서는 상대적으로 제한이 있을 수 있습니다.그러나 도보 학세권 + 워터프런트 조망권 + 11공구 신규 상권 인접성을 고려하면
장기 보유 시 가치 상승 여력은 충분하다는 평가입니다.
⚖️ 규제사항
- 비규제지역
- 전매제한: 6개월
- 거주 의무: 없음
- 재당첨제한: 없음
따라서 투자 및 전매 목적의 수요자에게도 열려 있으며,
송도 내 희소한 규제 해제 단지로 분류됩니다.📅 청약일정 요약
- 입주자 모집공고: 2025년 12월 4일 (목)
- 특별공급: 12월 15일 (월)
- 1순위: 12월 16일 (화)
- 2순위: 12월 17일 (수)
- 당첨자 발표: 12월 23일 (화)
- 서류접수: 12월 27일~30일
- 계약체결: 2026년 1월 5일~7일

✨ 결론, 송도 11공구의 미래 프리미엄, 송도 한내들 센트럴리버
송도 한내들 센트럴리버는 단순히 또 하나의 아파트가 아닙니다.
송도의 미래 도시 구조를 완성하는 핵심 입지로서, 실거주 만족도와 장기 자산가치를 동시에 노릴 수 있는 단지입니다.📍 비규제지역
📍 도보 학세권
📍 11공구 핵심 입지
📍 워터프런트 조망권
📍 향후 상권 확장성이 다섯 가지가 결합된 송도 한내들 센트럴리버는
2025년 송도 분양시장에서도 주목해야 할 단지입니다.반응형'부동산' 카테고리의 다른 글
서울 연희동 ‘드파인 연희 청약’ 대폭발! 1순위 당첨 전략 총정리 (0) 2026.01.01 🏙️ 더샵 신풍역 청약 완벽 해부 - “서울의 마지막 알짜 대단지” (0) 2025.12.28 전매제한 3년·거주의무 없음! 시흥거모 엘가 로제비앙 청약 꿀정보 총정리 (0) 2025.12.04 🏙️ 25년 12월 분양 확정! 더샵분당센트로 청약가이드|무지개마을4단지 리모델링 완전정리 (0) 2025.12.02 청량리역 롯데캐슬 SKY-L65 무순위 청약! 단 3가구 ‘10억 로또 줍줍’ 청약 총 정리 (0) 2025.12.01