-
목차
반응형
강남 한복판이 다시 들썩이고 있습니다.
“이번엔 진짜다”라는 말이 나올 정도로 부동산 시장의 시선이 한 곳으로 쏠리고 있죠.
그 중심에는 바로 최대 5억 원 이상의 안전마진이 예상되는 ‘역삼센트럴 자이 청약’이 있습니다.
단 87세대만 일반분양으로 공급되는 역삼센트럴 자이, 이번 기회를 잡는다면 앞으로 몇 년간 다시는 만나기 어려운 강남 신축의 마지막 찬스가 될지도 모릅니다. 예상 분양가는 23억 원대, 주변 시세는 30억 원을 훌쩍 넘습니다.
즉, 분양만 받아도 5억 원 이상의 시세차익이 기대되는 ‘현실적인 로또 청약’이라는 뜻이죠.지금부터 5억의 기회를 얻을 수 있는 역삼센트럴 자이 청약의 핵심 정보부터 청약 조건, 가점, 자금 계획과 실수요자·투자자 맞춤 접근법까지 하나씩 자세히 파헤쳐볼게요.

🏗️ 5억 안전마진?! 역삼센트럴 자이, 입지 정보
GS건설이 시공하는 역삼 센트럴 자이는 지하 3층부터 지상 17층까지 총 4개 동, 237세대 규모의 재건축 단지로 조성됩니다.
그중 일반분양은 단 87세대뿐이며, 특히 84타입(71세대)이 주력 평형으로 공급되어 실수요자들의 관심이 집중되고 있습니다.‘은하수아파트 재건축 정비사업’으로 추진되는 이 단지는 희소성과 입지 경쟁력에서 강남권 최상위 수준을 자랑합니다.
특히 수인분당선 한티역과 2호선 역삼역 사이에 위치해, 서울 주요 업무지구와의 접근성이 탁월합니다.
강남, 판교, 여의도, 종로 등 주요 도심으로의 출퇴근이 편리해 직주근접형 명품 단지로 평가받고 있습니다.그렇다면 왜 역삼센트럴 자이가 강남에서도 특별한 주목을 받을까요?
그 이유는 단지의 가치를 결정짓는 핵심 요소인 입지에 있습니다.
이 단지는 도심 접근성, 학군, 생활 인프라까지 모두 완벽히 갖춘, 말 그대로 ‘트리플 크라운 입지’를 자랑합니다.- 교통: 수인분당선 한티역 초근접, 2호선 선릉역·역삼역 더블 역세권
- 교육: 도곡초, 역삼중, 대치동 학원가를 도보로 이용 가능
- 생활: 이마트, 롯데백화점, 강남세브란스·삼성서울병원 등 프리미엄 생활권
- 업무: 테헤란로 중심 상권과 바로 연결된 최고 입지
이처럼 ‘교통 + 교육 + 생활’의 삼박자를 모두 갖춘 입지는 강남에서도 매우 드뭅니다.
특히 자녀 교육과 직장 접근성을 동시에 챙길 수 있는 점에서, 30~40대 실수요자에게는 압도적인 선택지로 꼽히고 있습니다.
즉, 역삼센트럴 자이는 단순한 신축 아파트를 넘어, 가족의 생활 품질을 바꿀 수 있는 프리미엄 입지형 단지로 자리매김할 가능성이 높습니다.🏠 역삼센트럴 자이, 평면 정보
역삼센트럴 자이는 실거주 중심으로 설계되어, 전 타입이 남향 위주로 배치되었습니다.
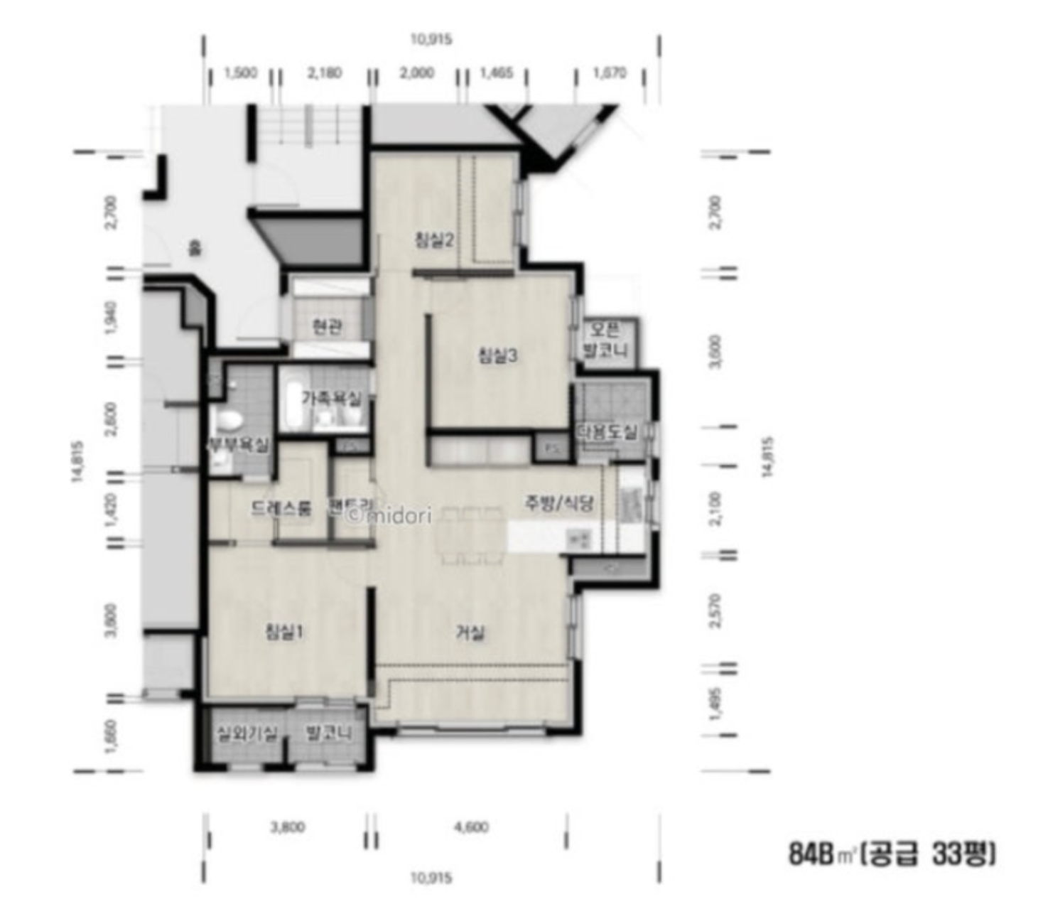
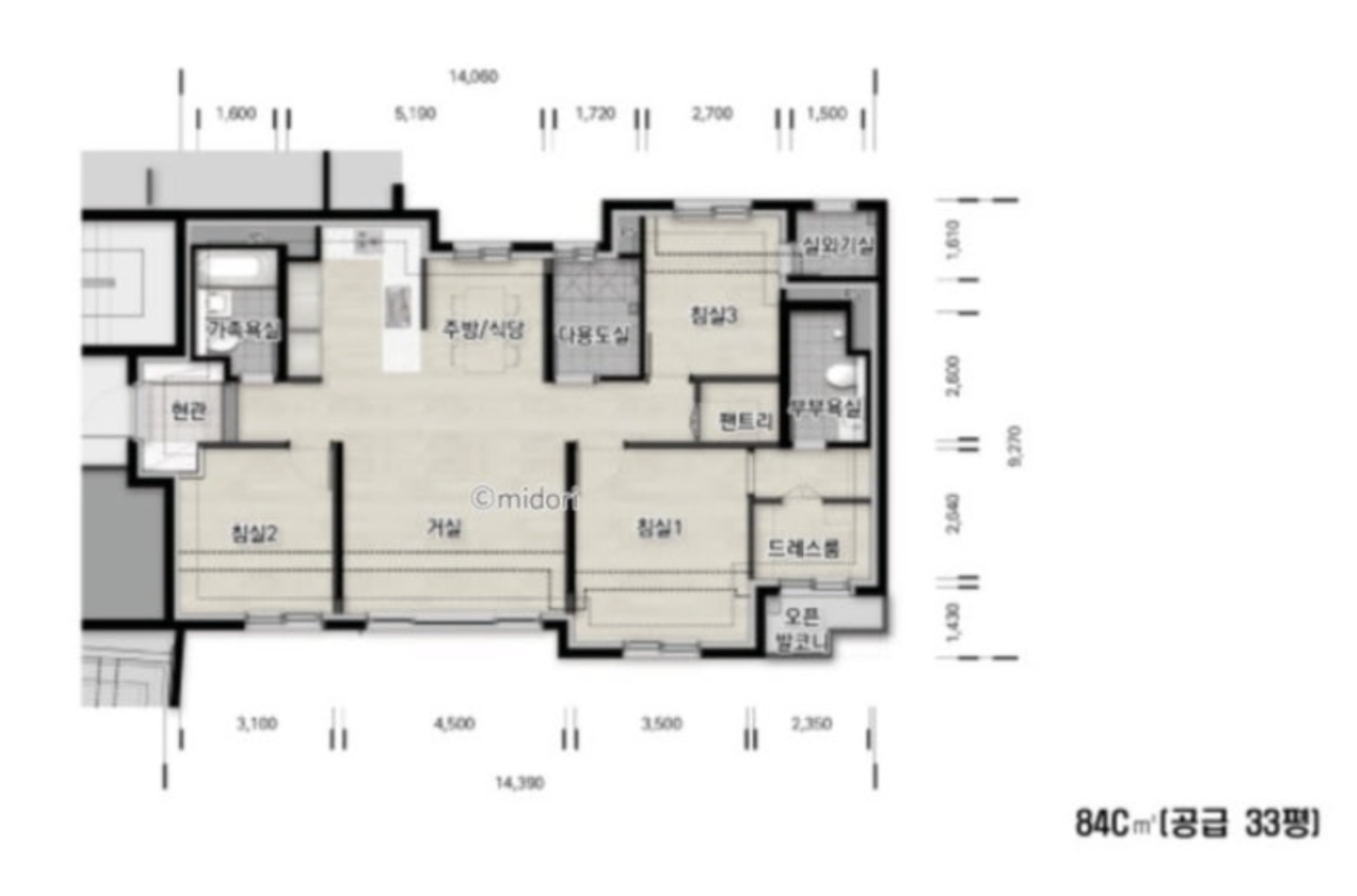
가장 인기 있는 84타입은 4Bay 판상형 구조로, 거실과 주방의 개방감이 돋보입니다.
59타입은 3Bay 실속형으로 1~2인 가구에게 적합하며, 114타입은 펜트리·드레스룸 등 수납 특화 설계로 고급 실수요층의 수요를 충족할 것이라 예상됩니다.
타입 세대수 구조 주요 특징 59㎡ 10세대 3Bay 실속형 구조, 1~2인 가구 및 신혼부부 중심 84㎡A 42세대 4Bay 남향 중심, 거실-주방 개방형, 팬트리 포함 84㎡B 13세대 4Bay 주방 동선 효율, 드레스룸 구조 강화 84㎡C 11세대 4Bay 맞통풍 구조, 거실 개방감 강화형 84㎡D 5세대 4Bay 코너세대형, 채광·조망 우수 122㎡ 6세대 4Bay 확장형 대형 평면, 드레스룸+팬트리 포함 프리미엄형 전 세대가 ‘자이 스마트홈 시스템’을 기본 탑재하고,
층고는 약 2.3m로 개방감을 높인 설계를 적용했습니다.
또한 각 동은 커뮤니티 시설과 가까운 배치로, 생활 동선의 편의성까지 고려했습니다.




📅 청약 일정과 공급 계획
- 입주자 모집공고일: 2025년 12월 5일(금)
- 특별공급 청약: 2025년 12월 15일(월)
- 1순위 청약 접수: 2025년 12월 16일(화)
- 당첨자 발표: 2025년 12월 24일(수)
- 입주 예정: 2028년 8월
강남권의 높은 관심 속에 청약 경쟁률은 200:1 이상이 예상됩니다.
특히 84타입의 경우, 수요 대비 물량이 적어 청약 당첨 확률은 ‘로또급’으로 전망됩니다.💰 예상 분양가 및 안전마진 분석
가장 중요한 포인트는 바로 **‘분양가’와 ‘안전마진’**입니다.
구분 내용 주변 시세(84㎡) 약 30억~32억 원 예상 분양가(84타입) 약 23억~25억 원 (평당 약 7,000만 원 수준) 안전마진(시세차익) 최소 5억 원 ~ 최대 10억 원 예상 즉, 분양만 받아도 최소 5억 원 이상의 시세 차익(안전마진)이 확보된다는 계산입니다.
💵 현실적인 자금 계획 분석
역삼센트럴 자이는 분양가 상한제가 적용되지만, 투기과열지구 내 고가주택(15억 원 초과)으로 분류되어 대출 한도가 매우 낮습니다.
항목 내용 대출 제한 LTV 40% 이하, 실질적으로 최대 2억 원 수준 계약금 분양가의 약 20% (약 5억 원) 중도금 대출 불가 또는 자납 가능성 높음 필요 현금 총액 약 23억 원 이상 (84타입 기준) 규제 조건 전매제한 3년, 실거주 2년, 재당첨 제한 10년 즉, 가점이 높아도 자금력이 부족하면 당첨 후 계약조차 어려운 구조입니다.
당첨보다 더 어려운 것은 ‘현금 동원력’이라는 말이 괜히 나온 게 아닙니다.
실제 계약금 5억 원, 중도금 10억 원 이상을 자납해야 할 수 있으므로 철저한 자금 계획이 필수입니다.🎯 청약 전략 : 실수요자 vs 투자자 맞춤 접근법
👪 실수요자 (30~40대, 8학군 입성 목표형)
- 서울 2년 이상 거주 + 무주택 세대 필수
- 가점 65점 이상이 현실적인 당첨선
- 자녀 교육, 실입주 목적이라면 장기 거주 전략이 유리
👉 팁: 청약홈 사전 알림 등록, 가점 시뮬레이션으로 사전 대비하세요.
💎 고액 보유 투자자 (시세차익·투자형)
- 1주택자도 처분 조건부 청약 가능
- 가점이 낮더라도 추첨제 물량을 노릴 수 있음
- 입주 후 전매제한·실거주 규제 해제 후 매도 전략 가능
👉 팁: 경쟁률이 낮은 평형(비선호 타입)을 전략적으로 노려보세요.
🏆 그래서, 역삼센트럴자이 청약해? 말아?
강남권 재건축이 이어지고 있지만, 분양가 상한제와 안전진단 강화, 인허가 지연 등으로 실제 공급 물량은 점점 줄어드는 추세입니다.
그런 이유로 ‘역삼센트럴 자이 청약’은 강남 중심 입지에서 신축으로 입성할 수 있는 사실상 마지막 기회로 평가받고 있습니다.특히 다음의 세 가지 조건을 동시에 갖춘 단지는 흔치 않습니다.
- 브랜드 : GS건설 자이 - 프리미엄 브랜드의 신뢰도
- 입지 : 강남 중심부 도심형 생활권, 한티역·역삼역 더블 역세권
- 공급 : 단 87세대 일반분양, 강남권 최상위 희소성
완공 후에는 ‘강남 신축 희소성 + 학군 프리미엄’이 결합되어 독보적인 자산 가치를 만들어낼 것으로 보입니다.
이 세 조건이 동시에 충족되는 분양은 향후 5년 내 다시 나오기 어려울 것입니다.결론적으로, 역삼센트럴 자이 청약은 ‘로또’가 아닌, 준비된 사람만이 잡을 수 있는 ‘현실적인 로또 청약’입니다.
강남의 마지막 신축, 그리고 미래의 자산 가치를 모두 품고 싶으시다면,
이번 청약 기회 꼭 도전해 보세요.반응형'부동산' 카테고리의 다른 글
청량리역 롯데캐슬 SKY-L65 무순위 청약! 단 3가구 ‘10억 로또 줍줍’ 청약 총 정리 (0) 2025.12.01 위례보다 싸다! 복정역 에피트 청약 총정리|시세차익 2억 노리는 법 (0) 2025.11.24 힐스테이트 광명 11구역 청약 전 꼭 보세요|비규제지역 조건 + 분양가 현실정리 (0) 2025.11.12 🏙️ 10.15대책 피한 유일한 분당 단지?|더샵 분당티에르원 자금 계획까지 완벽 분석 (0) 2025.11.10 🏙️ 반포 래미안 트리니티원 청약, 27억 넣고 40억 번다고? 역대급 로또 분양가 (0) 2025.11.08
